Rif: Rif.C/039
MORTARA
PAVIA
COMUNE DI LOMELLO – in zona non isolata, a pochi passi dal centro, servito da FS per Pavia/Milano - Bus - proponiamo tipico casale lomellino in corso di ristrutturazione con ampio terreno di pertinenza.
L'immobile è caratterizzato da un progetto con importanti lavori portanti tra cui il particolare del tetto a vista, la parte strutturale dell'edificio, la predisposizione della parte impiantistica.
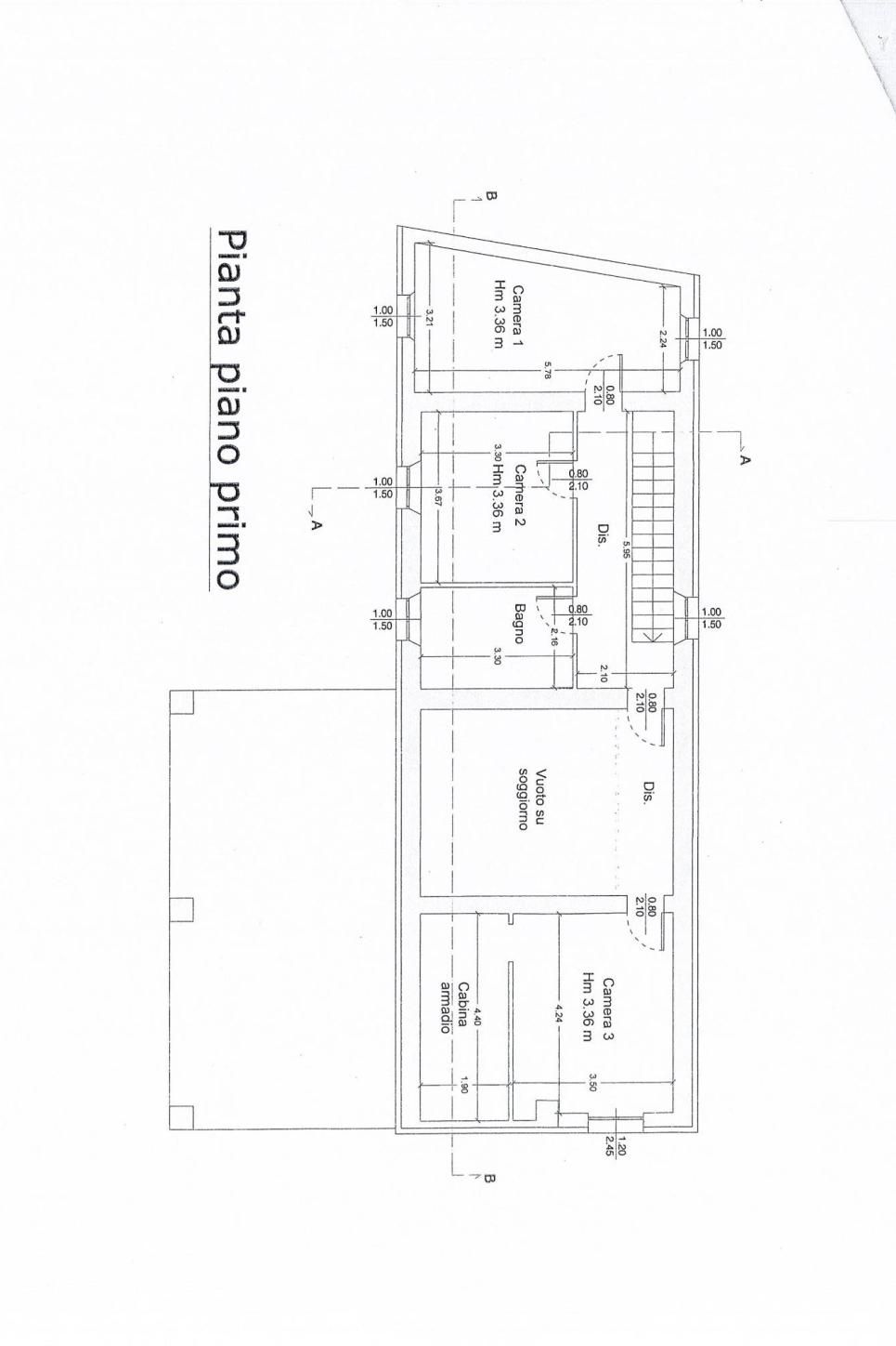
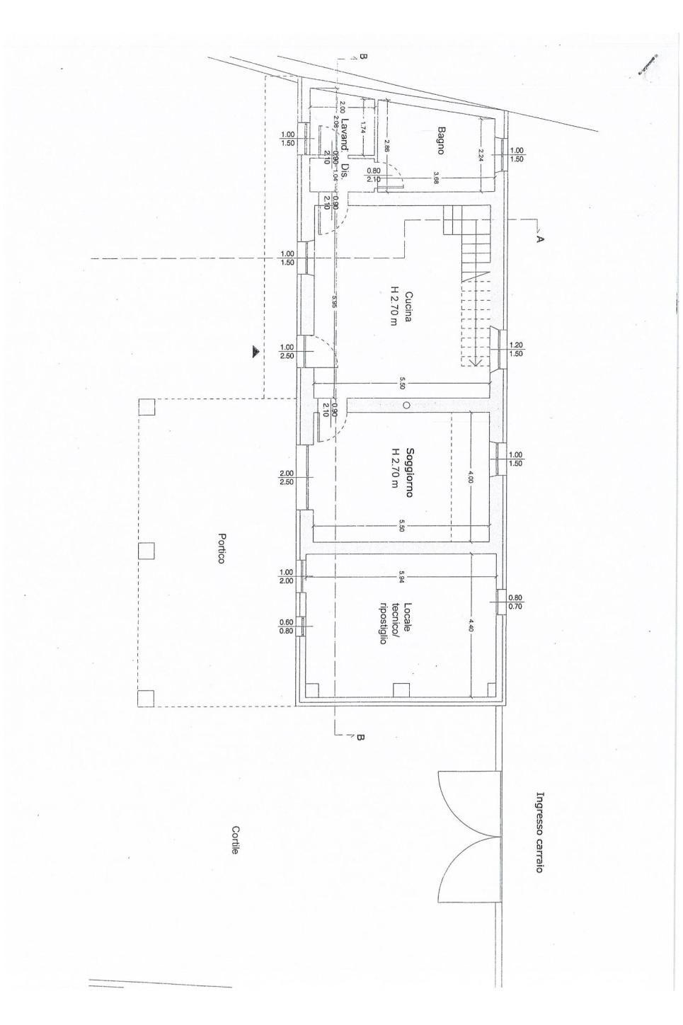
La vendita si effettua nello stato in cui si trova, permettendo ampia disponibilità di personalizzare gli spazi a proprio piacimento. la metratura è all'incirca di 200 mq con annesso portico collegato alla zona giorno, posti auto coperti e ampio terreno di proprietà ad uso giardino, oltre a vari locali accessori per ricovero attrezzi. L'abitazione è concepita al piano terra soggiorno con cucina a vista, locale dispensa, bagno e lavanderia - scala in muratura con affaccio sulla zona giorno accesso al primo piano composto da zona notte con 3 ampie camere da letto e altro ampio bagno.
Locale tecnico adiacente all'immobile per l'installazione di pannelli fotovoltaici già presenti sulla copertura. Le finiture da personalizzare – permessi e concessioni edilizie approvate.
AOCCASIONE. Rif.C/039
Prezzo euro 150.000
L'immobile è caratterizzato da un progetto con importanti lavori portanti tra cui il particolare del tetto a vista, la parte strutturale dell'edificio, la predisposizione della parte impiantistica.
La vendita si effettua nello stato in cui si trova, permettendo ampia disponibilità di personalizzare gli spazi a proprio piacimento. la metratura è all'incirca di 200 mq con annesso portico collegato alla zona giorno, posti auto coperti e ampio terreno di proprietà ad uso giardino, oltre a vari locali accessori per ricovero attrezzi. L'abitazione è concepita al piano terra soggiorno con cucina a vista, locale dispensa, bagno e lavanderia - scala in muratura con affaccio sulla zona giorno accesso al primo piano composto da zona notte con 3 ampie camere da letto e altro ampio bagno.
Locale tecnico adiacente all'immobile per l'installazione di pannelli fotovoltaici già presenti sulla copertura. Le finiture da personalizzare – permessi e concessioni edilizie approvate.
AOCCASIONE. Rif.C/039
Prezzo euro 150.000
Consistenze
| Descrizione | Superficie | Sup. comm. |
|---|---|---|
| Principali | ||
| Immobile - piano terra | 200 Mq | 200 Mqc |
| Totale | 200 Mqc | |
